VENTA – CARLOS CALVO 3660 ENTREGA: DICIEMBRE 2025
- USD 185.000
Descripción general
- Departamento
- 2
- 2
- 64 m²
- 59.19 m²
Descripción
Moderno departamento de 3 ambientes en el tercer piso, al contrafrente con balcón, ubicado sobre Carlos Calvo al 3600 en el barrio de Boedo, una zona en crecimiento, con excelente conectividad y cercanía a múltiples medios de transporte, comercios y espacios verdes.
La unidad se destaca por su amplitud, distribución funcional y excelente luminosidad en todos sus ambientes.
Algunas imágenes son de carácter ilustrativo y pueden incluir retoques con IA
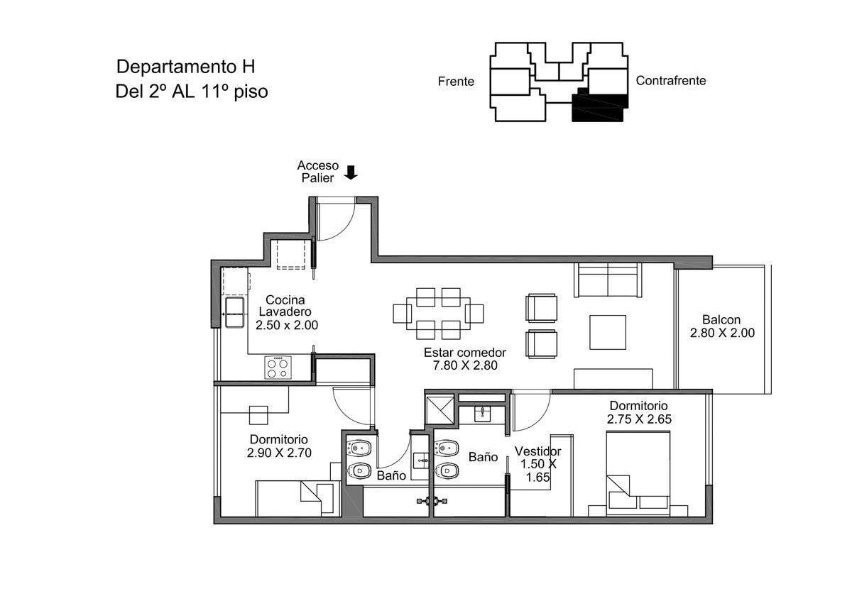
Recorrido del departamento:
Al ingresar, se accede directamente a un amplio living comedor,con cocina y lavadero integrados, equipada con anafe y horno eléctrico, en un ambiente moderno y abierto, con salida al balcón al contrafrente.
La unidad dispone de un baño completo, una habitación secundaria con placard empotrado, y un dormitorio principal en suite, que cuenta con vestidor y baño completo.
Características del departamento y del edificio:
– Balcón con baranda de aluminio y vidrio
– Carpintería exterior de aluminio anodizado
– Cortinas de enrollar automatizadas
– Pisos de PVC símil flotante en estar y dormitorios
– Pisos de porcelanato en baños y cocina
– Placares con frente de espejo o melamina e interior completo
– Puertas interiores en madera pintada o lustrada con herrajes de bronce platil
– Artefactos de iluminación LED en todos los ambientes
– Dormitorio principal en suite con vestidor
– Cocina y lavadero integrados
– Amplios y modernos ascensores con cabina de acero inoxidable
– Iluminación LED en palieres y escaleras
– Control de acceso con cerradura electrónica y cámaras de vigilancia
– Espacio guarda bicicletas
– Bauleras y cocheras fijas opcionales
FECHA APROXIMADA DE ENTREGA: DICIEMBRE 2025
CURCIO PROPIEDADES MATRICULA EN CUCICBA Nº4852
AVISO LEGAL: Las descripciones arquitectónicas y funcionales, valores de expensas, impuestos y servicios, fotos y medidas de este inmueble son aproximados. Los datos fueron proporcionados por el propietario y pueden no estar actualizados a la hora de la visualización de este aviso por lo cual pueden arrojar inexactitudes y discordancias con las que surgen de los las facturas, títulos y planos legales del inmueble. Los precios indicados podrán modificarse sin previo aviso. La fecha de inicio de obra o posesión es estimada, podrán ser reprogramadas por la Dirección de obra y dependerán a su vez de un proceso de aprobaciones municipales u otros organismos intervinientes. El interesado deberá realizar las verificaciones respectivas previamente a la realización de cualquier operación, requiriendo por sí o sus profesionales las copias necesarias de la documentación que corresponda. Venta supeditada al cumplimiento por parte del propietario de los requisitos de la resolución general Nº 2371 de la AFIP (pedido de COTI) y despreocupándose de los gremios de obra.
Dirección
Abrir en Google Maps-
Dirección: Carlos Calvo 3660 3ºH
-
Ciudad: Ciudad Autonoma de Buenos Aires
-
Zona: Boedo
Detalles
Updated on octubre 21, 2025 at 11:40 am-
Precio USD 185.000
-
Ambientes 2
-
Baños 2
-
Antigüedad En construcción
-
Tipo de propiedad Departamento
-
Estado de la propiedad Emprendimientos
-
Dormitorios 3
Detalles adicionales
-
Superficie descubierta 3.19
-
Superficie semicubierta 1.63
-
Disposición y orientación Contrafrente - Sur
-
Cocina lavadero 2.50x2.00
-
Estar comedor 8.00x2.80
-
Dormitorio 2.90x2.50
-
Dormitorio en suite 3.00x2.70
-
Vestidor 1.80x.1.45
-
Balcon 2.70x1.70
Información de contacto
- Sucursal Chacabuco










